
項目地址:深圳·香瑞園
項目面積:175㎡
設計風格:簡約
設計團隊:尺子室內設計
軟裝設計:由房到家軟裝
落地管控:尺子&設美家團隊
簡約
它不是單純的簡樸
更像一種返璞歸真的生活態度

十幾年前,初接手屋主家的設計,要解決的是三口之家的實用性居住需求;如今孩子長大獨立,屋主夫妻倆更追求舒適放松的居住狀態,很榮幸在人生不同階段對居住環境的訴求變化時,屋主選擇的仍是尺子。
做X小姐家的設計時,恰逢疫情爆發,雖說方案已經敲定,但后續工作無法開展。設計師們利用起這段可貴的宅家期,靜下心來對手中的案子復盤、重新打磨,推敲出一版全新的方案,欣喜的是與屋主審美契合,于是果斷決定采用。
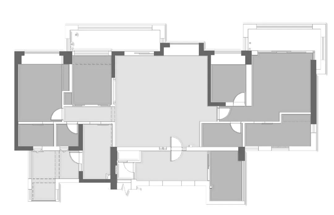
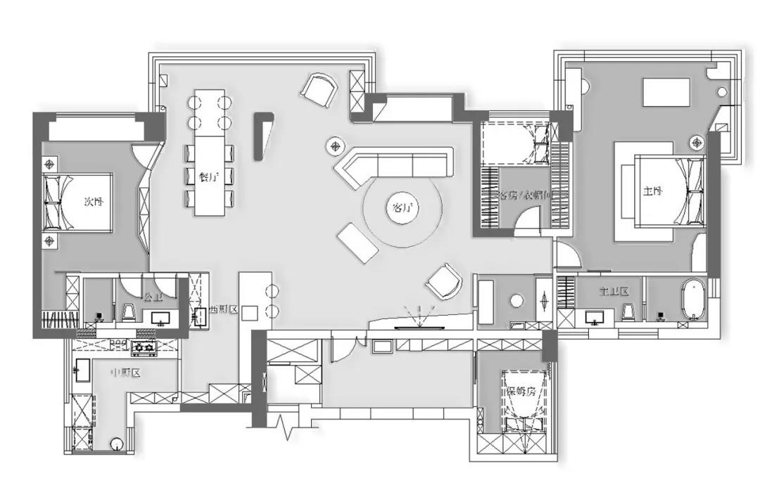
戶型改造

① 拆:考慮到這個家只有夫妻倆常住,我們將一間次臥拆除,釋放更多可利用空間,打造出開闊通透的客餐廳
② 并:餐廳以及次臥的大陽臺并入室內,主臥陽臺納入臥室做休閑/梳妝區,生活陽臺和中廚合二為一
③ 增:借用次臥部分面積拓寬公衛,在保留了公衛原本入口的基礎上,增加一扇通往臥室的門,公衛也是次臥的套衛

01.入戶玄關
關于家的初印象
出電梯后是一個寬闊的門廳,豎線條分割的瓷磚墻面上懸掛著定制的手繪山水油畫,白色的中柱造型與其上的擺件將鞋柜切割,灰白木三色地構成了這個有序空間。


02.公共空間
目之所及是風景,是家人
公共區域是一個整體,天花流暢的弧度展現出幾何的秩序與美感,木色、灰色的色塊與材質過渡應對空間的功能劃分。
寬闊的房屋中部穿插著一方立柱,與一側的墻體一同被純粹的木色包裹住,以達到流暢的視覺過渡。

03.客廳
閱讀休閑,關懷陪伴
輕盈的線條自由地勾勒著空間,虛實結合、分而不隔,讓整個家保持通透而又具層次感。
灰色藝術涂料奠定空間寧靜的基調,淺松石綠與淡黃的單人沙發豐富著客廳的色彩感知,以細微處的變動打破沉悶,構建出輕松舒適、愉悅愜意的氛圍。

墻面裝飾畫,不規則的線條無限綿延,將視線牽引至地面,圓形的地毯與茶幾,一大一小相映成趣。

寬敞的落地窗邊,是靜謐的休閑區,光影穿梭于室內,與純粹的木色一同展現出愜意安然的姿態。





04.餐廳
溫酒煮茶,共話家常
視線轉換,餐廳與西廚,灰色與木色穿插組合;餐桌背后是立體感十足的背景墻,輔以燈光的點綴效果,層次感與格調性頓生。
開放式的西廚區與客餐廳連為一個整體,素灰色的基底鋪陳出簡約的氣質,吧臺的設置讓空間多了絲不拘一格的隨性,后方杯架在燈光的映襯下,顯得更加輕盈。

通透開闊的空間內,白色的巖板餐桌與灰色茶臺相接,溫潤的木作、蔥蘢的綠意,共同承載起餐廳的氛圍營造。

餐廳背景墻還隱藏著次臥的入口,隱形設計避免了視覺雜亂,空間整體性更強。




05.次臥
低調安靜
稍顯低調的高級灰與質樸的木材搭配起來,總是這樣默契,經久耐看。


06.主臥
流線圍合,自然優雅
臥室空間依舊是溫潤且有質感的原木色調,天花圓潤的曲線呈現出一種圍合感,讓屋主有一種悠閑自在的居住狀態。


白色推拉門后是隱藏的主衛空間,不同明度的灰色瓷磚搭配炫彩玻璃,在安靜的秩序中融入絢爛的美感。


家的設計
越質樸,越高級


玄關效果圖



主空間效果圖

主臥效果圖
本文來源:尺子室內設計

熱線
關注
置頂